+420 724 871 175

info@ecostavby.cz
Zpět na produkty

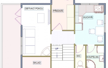
Dřevěná chata - 6

Srubová chata s obytným podkrovím a terasou.Chata o rozměrech 5,5 *7m  s předsíní 1,2 * 2m.

Poptat produkt

Ceník

Nezateplená chata síla stěny: 4,5 cm 750 000,- Kč Co obsahuje cena?
Zateplená chata síla stěny: 4,5 cm + vata 6 cm + palubka 18 mm 1 020 000,- Kč Co obsahuje cena?

Poptávkový formulář

Specifikujte Vaši poptávku a my vás budeme v co nejkratší možné době kontaktovat.