+420 724 871 175

info@ecostavby.cz
Zpět na produkty

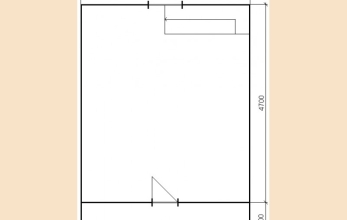
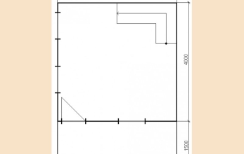
Dřevěná chata - 9

Srubová chata s obytným podkrovím, terasou a balkonem o rozměrech 4 * 4,7m.

Poptat produkt

Ceník

Nezateplená chata síla stěny: 4,5 cm 420 000,- Kč Co obsahuje cena?
Zateplená chata síla stěny: 4,5 cm + vata 6 cm + palubka 18 mm 570 000,- Kč Co obsahuje cena?

Poptávkový formulář

Specifikujte Vaši poptávku a my vás budeme v co nejkratší možné době kontaktovat.